loft lichttoren
De Lichttoren in Eindhoven uit 1909, is een historische fabriek van Philips, waar in de twintigste eeuw gloeilampen en andere producten geproduceerd en getest werden. Met het verplaatsen van de productieactiviteiten vanaf de jaren ‘70 kwam het pand in 1998 leeg te staan, waarop woningcorporatie Trudo het initiatief nam het te herontwikkelen tot een mix van de functies waaronder; wonen, werken en recreëren. De architectuur van het gebouw in combinatie met het nieuwe programma heeft geresulteerd in specifieke hoogstedelijke kwaliteiten, uniek voor een stad als Eindhoven.
-
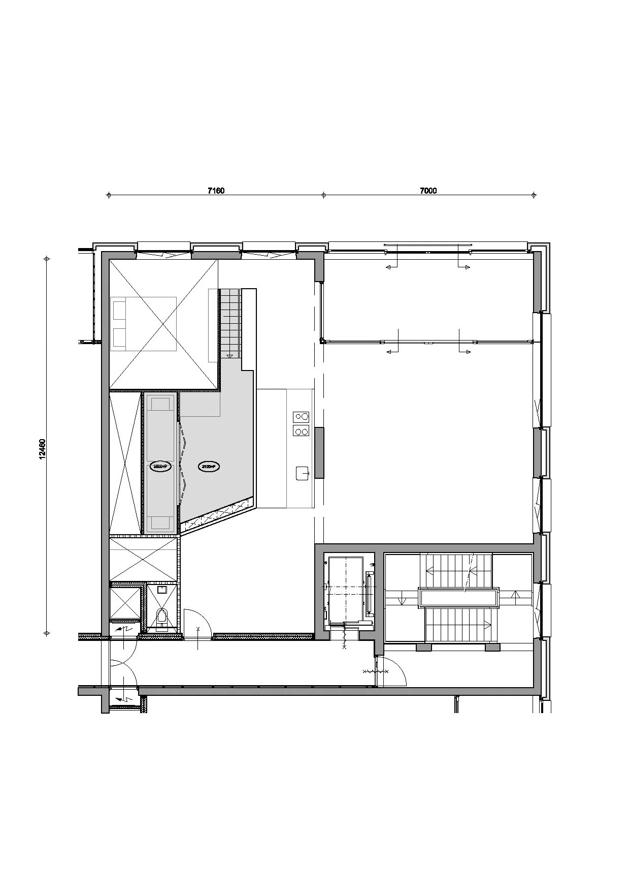
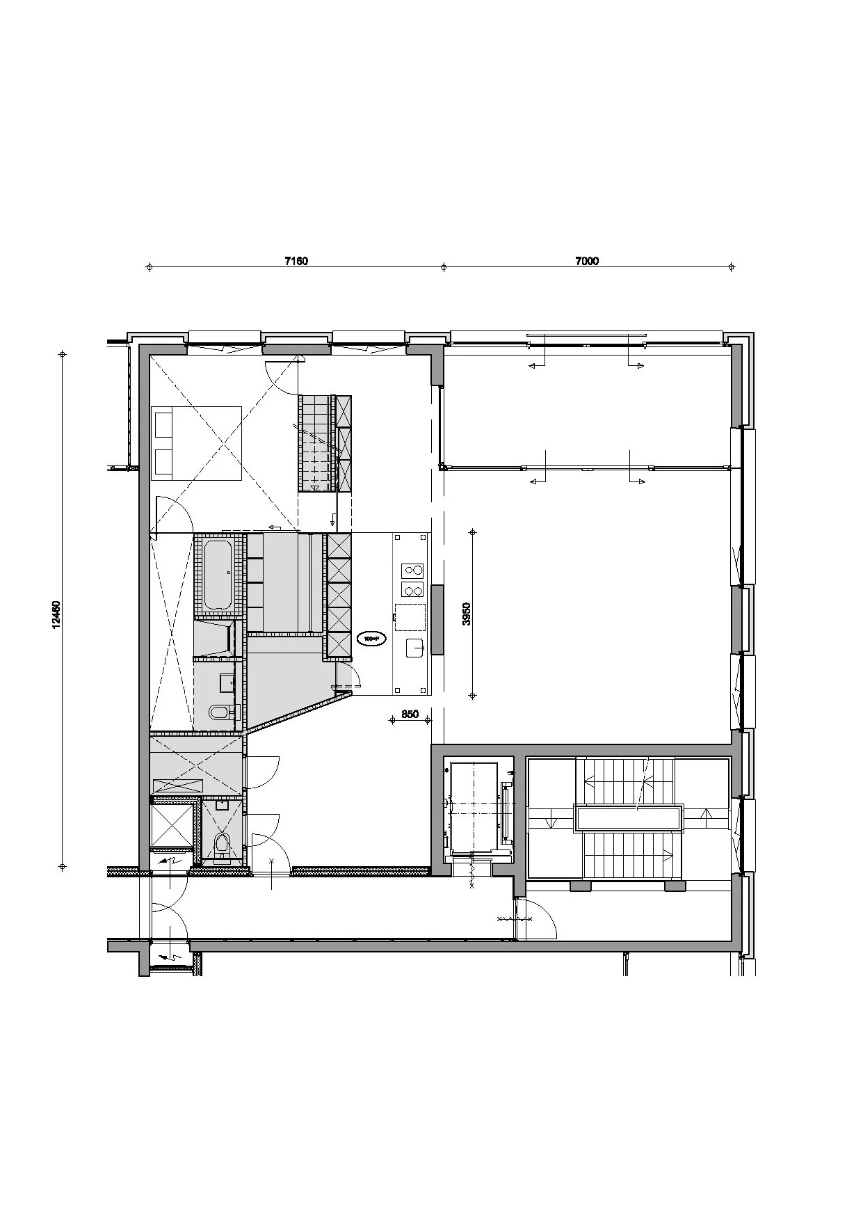
Onderdeel van de 16.000m² aan woonoppervlak zijn een aantal casco lofts, met een oppervlak van 110m² en 4,2m hoog, die door de koper/bewoner naar eigen inzicht ingericht konden worden. De betonnen constructie van het gebouw, is geheel in het zicht gelaten en met een transparante lak afgewerkt. Een groot inbouwelement waarin alle service's zijn opgenomen verdeeld de ruimte in een open woonruimte met keuken en een private slaapruimte met badkamer. De ingebouwde kasten zijn bekleed met fineer hout aan de buitenzijde en oranje gelakt hout aan de binnenzijde. Op een verhoging bevindt zich de studieruimte, die in open verbinding staat met de woonruimte. hier bevind zich ook boven de badkamer, de ingebouwde logeerkast afgeschermd met harmonica deuren.
Het kookeiland van 4m bij 90cm werd door De Bever Architecten speciaal ontworpen voor het interieur van 'Woonhuis Eindhoven II' en beleeft hier op verzoek van de opdrachtgever van de loft haar tweede toepassing.
locatie: Eindhoven
status: gerealiseerd in 2011
opdrachtgever: particulier
discipline: transformatie
programma: inrichting loft appartement
oppervlak: 160m²
fotografie: Merel van Beukering
publicaties: Archdaily, Archello, Architizer
-
aannemer interieur: Smeulders interieurgroep





